There is no such thing as an ideal floor plan. The ideal is always changing because a practice is a living, changing thing. An efficient floor plan for a new graduate will be outdated when he has a staff of 4 or 5, and the ability to handle more patients. Years ago, orthodontic case loads were very limited and floor plans designed for the general dentist were close to the orthodontist's needs. Now, with more efficient mechanics and the delegation of duties, case loads have greatly increased. Therefore, the ideal plan leaves the range of 900 sq. ft. and enters the 1500-2000 sq. ft. range.
New Office or Satellite Office
The orthodontic graduate setting up a new practice or the older practitioner setting up a satellite office is concerned with keeping rental cost down and making maximum utilization of space. Often, the doctor must rely on one assistant to handle the business area and assist or clean up in the operatory. Even when the second assistant is hired, the first assistant will be quite involved with the operatory, since only when the practice is blooming will she be compelled to devote full time to the business area.
The physical arrangement of the floor plan for this type of office should allow quick access between the business area and the operatory; and still have at least visual access to the waiting room. A triangular pattern between these three areas has been suggested by office designers as a general rule. However, it is less important if the receptionist has excellent visual control of the waiting room and communication by intercom available to her.
Minimum Requirements for the Beginning Orthodontic Practice or Satellite Office
Double-wall construction in key areas, such as between waiting room and main office.
Accoustical material on ceilings.
Use of music in this connection.
Parents and doctor should not be in earshot of the appointment scheduling area.
Phone intercom is adequate and least costly at first. Consider other intercom as staff increases
and activity and office design warrant it.
Roughly 865 sq. ft. is a minimum for a 3-chair office, if restroom facilities are provided by the building.
Add 100 sq. ft. for each operatory.
Example:
Waiting Room 10X15 = 150
Private Office 8X10 = 80 Operatory
#1,2,3, (each)10X10= 300
Business Office 8X10 = 80
Laboratory 10X12 = 120
Developing X-rays 3X5 = 15 Storage Rooms = 45 Hallways =50 Partitions =25
Total = 865 ft.2
Possible Extras: Operatory #4 10x10 = 100 Private Restroom 6x4= 25 Reception Room Writing Area 6x4 = 25 Vanity Area 6x4 = 25 Lost space (Hall, etc.) = 50
Grinding Room 6x5 = 30
Total = 255 ft.2
Grand Total = 1120 ft. 2
This chart shows how easy it is to run up the square footage on even a very modest office and a minimum of extras.
Square footage depends on:
Remember, the people you are dealing with are not the average population. They are used to service and extras in their daily activity and, of course, appreciate an efficient office with pleasant surroundings.
Floor Plan
A good floor plan incorporates four main features:
Traffic flow should generally be circular. You will not have people walking by the reception desk twice. Even the traffic pattern in the reception room will not necessarily be right through the middle of the seating arrangement. Avoiding the intersection of a lot of traffic patterns prevents congestion. Therefore, circular continuous patterns are best, with areas of work and authority off these patterns. A number of things can be in the center core, such as the receptionist's area, office manager, lounge, rest rooms, consultation area, group instruction area.
Many orthodontists ignore the advantages of a circular traffic pattern and copy the straight-line traffic pattern perpetuated by most general dentists, which requires passing through the business area twice. The circular pattern requires passing through the business area only when leaving. This reduces congestion by 50% and relieves the secretary of the burden of traffic control.
Traffic Flow
The traffic flow within the office can be divided into four zones:
Naturally, the four zones occasionally intersect and share common avenues of traffic; but the less they intersect, the less the congestion. A good plan has several zones of activities with minimal overlapping, which is important as the staff grows. This is in agreement with the concept of Robert Ardrey who says, in his book "The Territorial Imperative", that all individuals wish to establish their own territory in which they are in authority. This psychological aspect is extremely important and a good plan reduces interpersonal tensions and clashes of authority.
In building a floor plan, once the location of the operatory is decided, the other areas seem to fall into place. We consider the possibilities of putting the key areas into a certain perimeter and the reasons for doing it that way, including window locations. The location of the operatory depends a great deal on the psychology of the doctor in relation to parents. Some want to be completely away from the reception area and some want the operatory to be centrally located with everything radiating around it. Not every orthodontist is an extrovert and wants the constant possibility of contact with parents interfering with his work. So, you have to blend the personality of the doctor into the office design. I think most doctors would rather be detached from the people in the reception room, most of the time.
Designing the Use of Space
All other things being equal, the larger the square footage, the easier it is to design a complete and efficient office floor plan; and the squarer the space the easier it is to idealize the concepts of traffic flow, speed and efficiency, zones of authority, and reduction of stress.
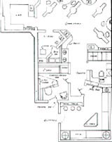
However, few offices have the luxury of a large square perimeter within which to plan an office layout. Available offices come in all sizes and shapes. In offices such as Plans A and B(under 1500 square feet) a parallel arrangement of chairs is the most practical solution because it requires the least square footage. The smallest office (Plan A) can still include the basic necessary spaces, but without the comforts and convenience and the efficiencies of more space; and without the basic circular traffic pattern that contributes so much to an efficient office plan.
The 1500 square foot plan (Plan B) does allow for a circular traffic pattern and for an excellent amount of space for the essential office needs. This office has only 4 chairs, but this aspect was dictated by the needs and desires of the doctor and the way he anticipates practicing in the next ten years.
Plans C, D, and E are all larger office spaces (Plan C- 2100; Plan D- 2500; Plan E- 2800) and represent solutions to planning for the L-shaped space, the elongated rectangle, and the large square space. It was possible to work out a circular traffic pattern for each one. Many offices have the long
narrow perimeter (especially at ground level in shopping centers, where they may be 20 feet wide and 60 to 100 feet in depth. They are a challenge to work out an efficient floor plan, but it can be done.
Energetic, ambitious young orthodontists who will develop large practices, can't be hamstrung by a poor office design. They will not be happy with an extremely economical floor plan. On the other hand, there are orthodontists who will be happy with a modest practice. They may be ina high rent area, $10-12 a square foot. In that kind of a rent area, with a practice that has not yet proven itself, the orthodontist ought not be thinking of 2100-2200 sq. ft. He should almost have a satellite type of office, maybe 1000-1200 sq. ft.
A well-established orthodontist with a staff of six or seven can't be put into 1500 sq. ft. just to save several hundred dollars a month in rent. So, it is important to know what type of person you are dealing with and what his objectives are. You also have to think about how old the practitioner is and whether he is in an area that is likely to grow. You have to think about office square footage and number of chairs in terms of potential. Some communities will not support a large practice and the orthodontist must settle for satellite types of practice, part-time in smaller offices. Also, some population areas are concentrated and some are spread out. One idea is to have one main office where the headplates can be taken or the total exam done, so that equipment need not be duplicated.
Some orthodontists like to give the appearance at all their offices that they are established offices and not a satellite, so they equip each one fully. Sometimes, the economics will not permit you to do that and you ought not to do it because your satellite area hasn't proved itself yet. People like a sense of stability and security when they deal with an orthodontist. If you are the only orthodontist in a small town of 7000 people, you can have a satellite office that is economical and ask people to drive twenty miles to your main office for records. But, let the town grow to 10-20,000 and let another orthodontist move into town with full equipment, and that won't work. Under the new circumstances, if you don't have the appearance of permanency, you are at a disadvantage.
Economizing on Space
Typically, an orthodontist will have 1500 sq. ft. and want a separate lounge for the girls, 5 chairs in the operatory, a nice private office, a good secretarial area, consultation area, records area, and, of course, he needs a laboratory. In trying to put these into a 1500-foot perimeter, he must realize that there are certain things he cannot have.
Economizing on office space can be counterproductive, because of the kind of spaces that a modern orthodontic office needs to manage itself properly; for instance, lounges for personnel. You can eliminate a lounge, but if you have one you probably are thinking in terms of the kind of management that's going to be conducive to a team effort and a much better atmosphere in your office.
One problem when you economize is that you don't feel like spending the money for storage areas and you usually wind up with inadequate storage. That is why the sliding storage concept is
excellent. Storage walls are also good, but they still take up square footage .
Possibly the waiting room area is a place you can cut down, particularly if you are scheduling properly. If it becomes full at times, a mother can leave and wait in the car. It may not be ideal, but we may have to economize in some way and that may not be the worst. Most waiting rooms are overbuilt for the use they get for the greatest percentage of the time.
If you don't have the space, you have to cut down somewhere. Some offices combine areas to economize on space, but combining areas can create problems. If you have an audiovisual area and combine it with something else, such as a consultation area, there is going to come a time when you want to use it for audiovisual and it will be busy with a consultation. Likewise, when you put your consultations in your records room. Yet, some orthodontists like the combination of the records room and the consultation area. Some like the combination of consultation and private office. Some like a combination of exam and records room, but that is difficult. Records may take 45 minutes and that exam room is tied up for that time. You may have to bring a mother and new patient into the main operatory for an exam, which is not good. That is why you can't stamp out an ideal floor plan for everybody.
One combination that many orthodontists use, hoping to save on square footage, is laboratory and dark room. This is bad for a number of reasons, not the least of which is that the lab should have a window in it and also be large enough to be an attractive work area. For the amount of square footage involved for a dark room, it could be combined with a clothes closet or with storage.
Building Your Own Office
If an orthodontist is building his own building, I always tell him to think about the day he is going to sell it. Most people haven't done that. I suggest making more rentable space available with full basements with very nice access. I recommend giving the building far more versatility that the orthodontist was generally thinking about. Make sure that basement ceilings are nine-foot ceilings and specify that ducts and plumbing pipes do not violate an eight-foot ceiling. If he is going to build his own building, he ought to contemplate spending at least 10-15 years in it. It is important to plan the building in such a way that someone would be willing to buy it based on its investment return and very few dentists do this. Frequently, dentists do not charge enough rent, and this affects the selling price. Investors are looking for 12-14% return these days. I don't really advise building a building just for an orthodontic office, unless you can't find the office you want in the location you want. The flexibility of leasing permits you to accommodate to changing conditions. There may be areas in the country where there are still possibilities of making a good investment in the land and building an orthodontic office building reasonably, but the odds are against it.
I would never consider building a building without an architect, but they often do not know our needs as well as we do. Therefore, you must be prepared to guide them, especially in the development of a basic floor plan. They may never have done a dental office. For instance, they may plan for operatory lighting that depends on a dental light, when that may not be what you had
in mind. They don't know about the Kentucky study or what the needs of a modern orthodontist office are. When you have your basic plan, operatory, traffic flow, lighting needs, and so on, then the architect may come in. On a renovation, a good builder with contracting experience could do it. Sometimes a large building may insist that their architect work with you, because they don't want you messing up their square footage. You may have to negotiate through an architect in that situation, whether you like it or not.
There are various maintenance factors, especially if this is your own building. In most locations where there is snow, I recommend heating pads in the sidewalks and outside stairs. It has a lot to do with cleanliness. If the office is directly off the street, people will bring in mud on a rainy or snowy day.
Concrete floors are the worst for plumbing, but may cut down on the cost of fire insurance. In the operatory, I prefer wood floors, not only for plumbing reasons, but for standing and walking.
I always recommend having the cabinets done far ahead of time, so they are on site when the plumbing goes in. When the floor is being put in, if it is a new building, or when the plumbers are there, those cabinets will be ready for installation. It is a good plan to keep the plumbing in the back of the cabinets to make the front available for storage. Poor planning and lack of availability of cabinets in advance are two most significant factors in loss of valuable time in starting a new office.
I recommend carpeting the floors throughout, with the possible exception of the grinding room and the dark room. I use poured plastic in those areas. It is extremely durable and you don't even have to wax it. It is available at floor covering stores. Torganol is one product name.
It makes a difference whether the office faces North, East, South or West. You have problems of sunshine. If you have a nice view facing South, you will have to drape the windows at certain times of the year. At other times and places the sun will be level from the West in the afternoon. Tinted glass is not sufficient alone, but combined with mirrored glass it is pretty good. It insulates well, too, and saves on air-conditioning in warm weather.
Many times, we do the same thing that we did in our first office in our next office, because we are creatures of habit. We might have been economizing to the nth degree in that first office, but we end up combining things in the new office, which now may be quite inefficient.
Economics is a problem that should not be overlooked. It is possible that we would consider a new concept of being able to cut exam, audiovisual, consultation, and records chairs off from the operatory with temporary sliding walls, to permit more flexibility at a lower investment and a lower annual rent.
It is as bad to overeconomize in a growing practice as it is to overexpand in a declining practice. It is necessary to evaluate the potential of the practice and the doctor.
 
                                 
                            





 
			 
			 
			 
			 
			